登录
收藏本站
Hi,下午好!
今天是
显示时间的位置
首页
走进园区
园区介绍
服务机构
规划之窗
资讯中心
园区资讯
公告公示
专题活动
行业资讯
产业促进
园区优势
资源推介
产业服务
企业风采
服务平台
信息公开
智慧平台
公告公示
首页
公告公示
公示
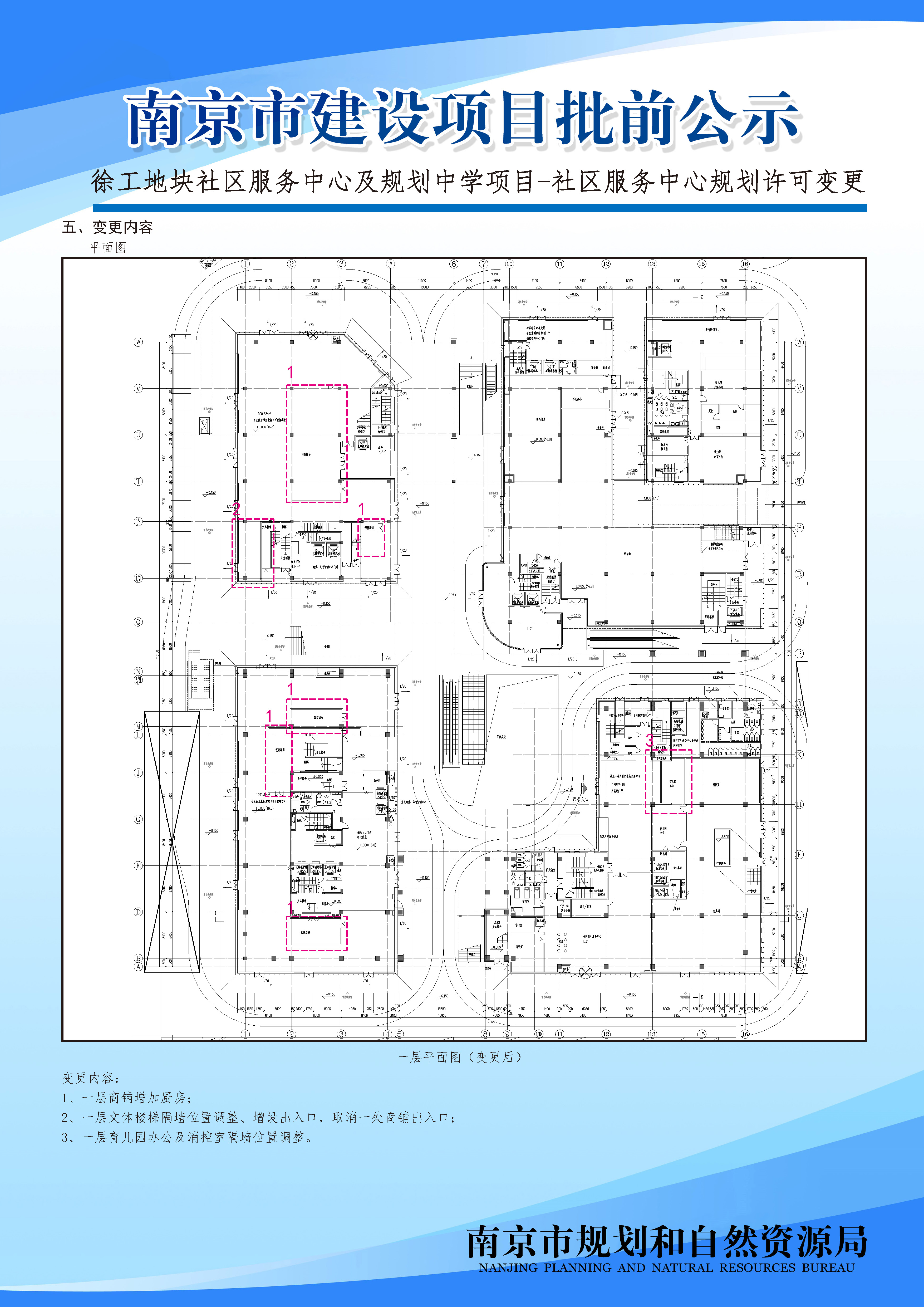
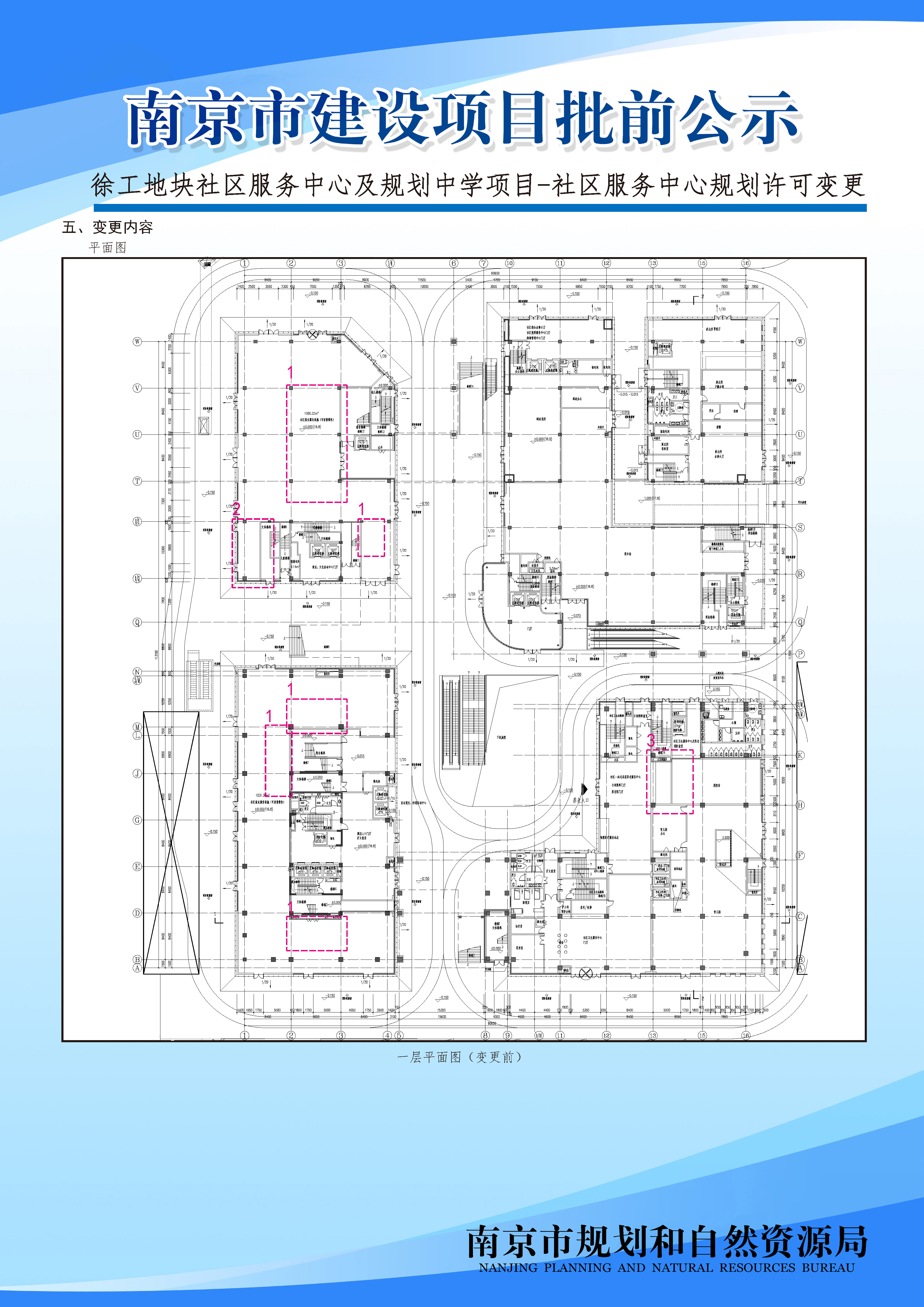
徐工地块社区服务中心及规划中学项目-社区服务中心规划许可变更批前公示(2025.10.14-2025.10.23)
发布时间:2025-10-14
Previous
Next